
| 価格 | 3175万円 |
| 土地面積 | 154.01㎡(46.58坪) |
| 所在地 | 八戸市湊高台4丁目16-27 |
| 交通 | 市営バス「平和病院前」徒歩6分 |
| 取引種目 | 売買建物 | お問い合わせ番号 | at | 取引態様 | 仲介 |
|---|
| 価格 | 3175万円 | 間取り | 4LDK | |
|---|---|---|---|---|
| 所在地 | 八戸市湊高台4丁目16-27 | 交通 | 市営バス「平和病院前」徒歩6分 | |
| 土地面積 | 154.01㎡(46.58坪) | 他、私道面積 | 無 | |
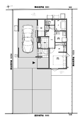
| 建物構造 | 2×4工法2階建 | 建物面積 | 83.22㎡(25.17坪)+ガレージ17.62㎡(5.42坪) | |
| 間取内訳 | 1階:洋室4.5帖 2階:LD10.1帖・洋4.6帖・洋11.2帖 | |||
| 接道状況 | 東側幅員22mの公道に8.9m接する | |||
| 築年月日 | 2026年3月完成予定 | 現況 | 未完成 | |
| 引渡時期 | 完成後 | 駐車場 | 4台可 | |
| 土地権利 | 所有権 | 用途地域 | 第一種住居地域 | |
| 都市計画 | 市街化区域 | 地 目 | 宅地 | |
| 建ペイ率(%) | 60% | 容積率(%) | 200% | |
| 学区(小) | 青潮小学校 | 学区(中) | 東中学校 | |
| ガ ス | 無 | トイレ | 公共下水道・温水洗浄便座2カ所 | |
| コメント | 生活利便性に優れた好立地に誕生した、4LDK+ガレージ付のオールインワン住宅。 土地・建物・外構工事まで含めた安心価格で、購入後すぐに快適な新生活をスタートできます。 | |||
| 備考 | 特徴:2×4工法 / 高気密高断熱住宅 / 駐車4台可 / エコキュート / システムキッチン / 食洗機 / シャワー付洗面化粧台 / EV車充電設備 / 温水洗浄便座 / TVモニタ付インターホン / 全居室フローリング / 全居室複層ガラスか複層サッシ | |||
| 更新日 | 2026年02月14日 | |||

※
本物件の内容や画像等は、すべて現況優先とさせて頂きます。
有限会社らいず不動産
青森県知事免許(5)第3094号 青森県八戸市沼館一丁目6-3
TEL:0178-71-1151 FAX:0178-71-1157 heart@raizu-fd.com