
| 価格 | 2595万円 |
| 土地面積 | 131.28㎡(39.71坪) |
| 所在地 | 八戸市⾧苗代三丁目18-16 |
| 交通 | JR八戸線「長苗代」駅徒歩9分 |
| 取引種目 | 売買建物 | お問い合わせ番号 | at | 取引態様 | 仲介 |
|---|
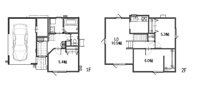
| 価格 | 2595万円 | 間取り | 3LDK | |
|---|---|---|---|---|
| 所在地 | 八戸市⾧苗代三丁目18-16 | 交通 | JR八戸線「長苗代」駅徒歩9分 | |
| 土地面積 | 131.28㎡(39.71坪) | 他、私道面積 | 無 | |
| 建物構造 | 木造2階建 | 建物面積 | 80.15㎡(24.24坪) | |
| 間取内訳 | 1階:洋5.4帖 2階:LD10.5帖・洋5.3帖・洋6 | |||
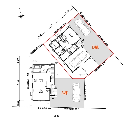
| 接道状況 | 北東側 幅員6m 公道に12.1m接道 | |||
| 築年月日 | 2025年7月 | 現況 | 完成 | |
| 引渡時期 | 即引渡し可 | 駐車場 | 敷地内2台可 | |
| 土地権利 | 所有権 | 用途地域 | 第一種低層住居専用地域 | |
| 都市計画 | 市街化区域 | 地 目 | 宅地 | |
| 建ペイ率(%) | 50% | 容積率(%) | 80% | |
| 学区(小) | 下長小学校 | 学区(中) | 下長中学校 | |
| ガ ス | プロパンガス | トイレ | 洋式トイレ | |
| コメント | (B棟)お子さまの成長と暮らしやすさを考えた3LDK+ガレージ付住宅。 外構工事まで含めたオールインワン仕様で、入居後すぐに新生活を始められます。 | |||
| 備考 | 【設備・特徴】高気密高断熱住宅 / 駐車2台可 / 省エネ給湯器 / システムキッチン / シャワー付洗面化粧台 / EV車充電設備 / 温水洗浄便座 / TVモニタ付インターホン / 全居室フローリング / 全居室複層ガラスか複層サッシ ※駐車スペースはアスファルト舗装。 ※災害に強い、独自の「非常時電源供給システム」を導入。 (長期メンテナンス保証付き) |
|||
| 更新日 | 2026年02月14日 | |||

※
本物件の内容や画像等は、すべて現況優先とさせて頂きます。
有限会社らいず不動産
青森県知事免許(5)第3094号 青森県八戸市沼館一丁目6-3
TEL:0178-71-1151 FAX:0178-71-1157 heart@raizu-fd.com